522 UCHWAŁA
RADY GMINY PĘCŁAW z dnia 30 listopada 2000 r. w sprawie uchwalenia miejscowego planu
zagospodarowania przestrzennego zasad kanalizacji wsi Leszkowice, Kotowice,
Kaczyce, Piersna, Wierzchownia i Pęcław
oraz zasad przebiegu tranzytowej sieci wodociągowej Piersna – Wierzchownia – Pęcław Na podstawie art. 7 ust. 1 i art.
18 ust. 2 pkt. 5 ustawy z dnia 8 marca 1990 r. o samorządzie gminnym (Dz. U.
z 1996 r. Nr 13, poz. 74 z późn. zm.) oraz art. 12 ust. 1, 2 i 4, art. 31
ust. 3 i art. 73 ust. 1 ustawy z dnia 7 lipca 1994 r. o zagospodarowaniu
przestrzennym (tekst jednolity w Dz. U. Nr 15, poz. 139 z 1999 r. z
późn. zm.) Rada Gminy w Pęcławiu uchwala, co następuje: |
R
o z d z i a ł I
Przepisy ogólne
§ 1
Uchwala się miejscowy plan
zagospodarowania przestrzennego zasad kanalizacji wsi Leszkowice, Kotowice,
Kaczyce, Piersna, Wierzchownia i Pęcław oraz zasad przebiegu tranzytowej sieci
wodociągowej Piersna – Wierzchownia – Pęcław, zwany dalej planem, obejmujący
ustalenia planu zawarte w treści uchwały oraz rysunki planu w skali 1:10 000 i
1:1000, stanowiące załączniki nr nr 1–8 do uchwały. Plan ten stanowi zmianę
miejscowego ogólnego planu zagospodarowania przestrzennego gminy Pęcław,
uchwalonego przez Gminną Radę Narodową w Pęcławiu uchwałą nr XII/40/86 z
11 kwietnia 1986 r. (Dz. Urz. Woj. Legnickiego Nr 4, poz. 39 z 2 maja 1986
r.).
§ 2
Przedmiotem uchwalenia są zasady
przebiegu tras kolektorów i magistrali wodnej, lokalizacje przepompowni, zasady
powiązań komunikacyjnych, zasady dostawy energii elektrycznej i sterowania
układem oraz prawne skutki uchwalenia planu.
§ 3
Gdy właściciel zbywa nieruchomość,
której wartość – w związku z jej położeniem w odległości do 50 m od trasy kolektora
kanalizacyjnego i/lub magistrali wodnej – wzrosła, Wójt Gminy Pęcław
decyzją pobiera jednorazową opłatę w wysokości ustalonego odsetka wzrostu
wartości. Odsetek ten ustala się na 8%.
§ 4
Zobowiązuje się realizatorów planu
do zgłaszania wszystkich znalezisk o charakterze historycznym do właściwej
jednostki Państwowej Służby Ochrony Zabytków, zapewnienia na czas robót
ziemnych nadzoru archeologicznego oraz sfinansowania ratowniczych robót
archeologicznych.
§ 5
Plan jest przepisem gminnym i
stanowi podstawę do ustalania warunków zabudowy i zagospodarowania terenu.
R
o z d z i a ł II
Przepisy szczegółowe
§ 6
1. Zasady
przebiegu kolektorów kanalizacyjnych i magistrali wodnej ilustruje załącznik nr
1 do uchwały. Szczegółowe przebiegi i średnice kolektorów i sieci wodociągowych
oraz zasady skrzyżowań z drogami, urządzeniami wodnymi i melioracyjnymi oraz
z podziemnymi i naziemnymi liniami uzbrojenia inżynieryjnego zostaną
ustalone w projekcie budowlanym.
2. Typy
przepompowni, ich usytuowanie na działkach, wymienionych w § 8, a także zasady
sterowania systemem i przebiegi elektroenergetycznych kabli lub linii
napowietrznych, z tym związanych, przedstawione na załącznikach nr nr 2–8,
zostaną określone w projekcie budowlanym.
§ 7
1. Lokalizacje
przepompowni i zasady ich obsługi komunikacyjnej ustala się jak niżej:
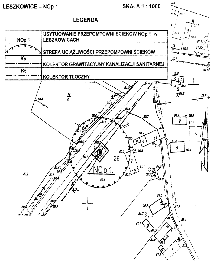
1) Leszkowice: dla przepompowni NOp 1. – część działki nr 26 o
powierzchni ok. 0,01 ha, (zał. nr 2), dla przepompowni NOp 2. – część działki nr 73/2 o
powierzchni ok. 0,01 ha,
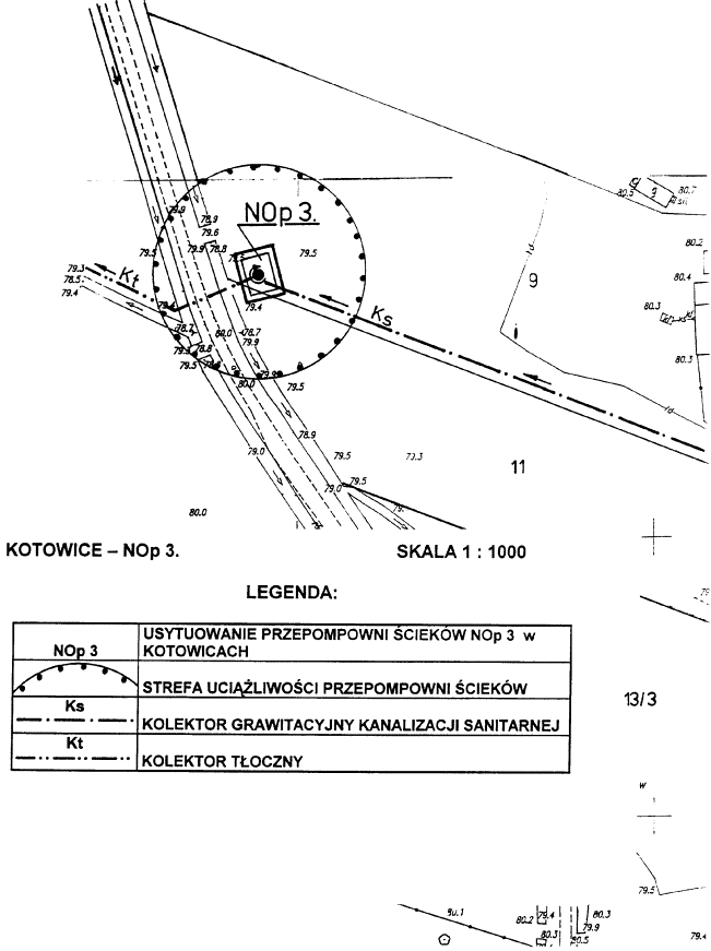
2) Kotowice: dla przepompowni NOp 3. – część działki nr 9 o powierzchni ok. 0,01 ha,
3) Kaczyce: dla przepompowni NOp 4. – część działki nr 23 o powierzchni ok. 0,01 ha,
4) Piersna: dla przepompowni NOp 5. – część działki nr 100/3 o powierzchni ok. 0,01 ha,
5) Wierzchownia: dla przepompowni NOp 6. – część działki nr 52/4 o
powierzchni ok. 0,01 ha,
6) Pęcław: dla przepompowni NOp 7. – działka
nr 135/19 o powierzchni ok. 0,01 ha.
2. Działki przepompowni należy trwale ogrodzić,
otoczyć zielenią i wyposażyć w bramy
wjazdowe. Dostępność komunikacyjna z dróg, przy których zlokalizowano
przepompownie jak na załącznikach
nr nr 2–8 do uchwały.
3. Uciążliwość przepompowni dla otoczenia ze względu
na hałas silnika pompy wynosi 30 m. W tych strefach wprowadza się zakaz
lokalizacji budynków mieszkalnych.
R
o z d z i a ł III
Przepisy przejściowe i końcowe
§ 8
Do czasu realizacji ustaleń planu
tereny, wymienione w § 7, zachowują swoje obecne użytkowanie.
§ 9
1. Z dniem
wejścia planu w życie wygasają ustalenia miejscowego ogólnego planu
zagospodarowania przestrzennego gminy Pęcław oraz jego zmian, dotyczące terenów
objętych planem niniejszym.
2. Z dniem
wejścia planu w życie tracą moc decyzje o ustalaniu warunków zabudowy i zagospodarowania przestrzennego sprzeczne
z ustaleniami planu niniejszego.
§
10
Wykonanie uchwały powierza się
Zarządowi Gminy Pęcław.
§ 11
Uchwała wchodzi w życie po upływie
14 dni od dnia jej ogłoszenia w Dzienniku Urzędowym Województwa Dolnośląskiego.
PRZEWODNICZĄCA
RADY
GMINY
ELŻBIETA ADAMOWICZ
Załącznik
nr 1 do uchwały Rady Gminy Pęcław z dnia 30 listopada 2000 r. (poz. 522)


Załącznik
nr 2 do uchwały Rady Gminy Pęcław z dnia 30 listopada 2000 r. (poz. 522)

Załącznik
nr 3 do uchwały Rady Gminy Pęcław z dnia 30 listopada 2000 r. (poz. 522)

Załącznik
nr 4 do uchwały Rady Gminy Pęcław z dnia 30 listopada 2000 r. (poz. 522)

Załącznik
nr 5 do uchwały Rady Gminy Pęcław z dnia 30 listopada 2000 r. (poz. 522)

Załącznik
nr 6 do uchwały Rady Gminy Pęcław z dnia 30 listopada 2000 r. (poz. 522)

Załącznik
nr 7 do uchwały Rady Gminy Pęcław z dnia 30 listopada 2000 r. (poz. 522)

Załącznik
nr 8 do uchwały Rady Gminy Pęcław z dnia 30 listopada 2000 r. (poz. 522)
